Lexus NX: Calibration

CALIBRATION

ADJUST PANORAMIC VIEW MONITOR SYSTEM

(a) This panoramic view monitor system can be set from the diagnostic screen of the multi-display assembly.

(b) If the following operations are performed, it is necessary to perform adjustments and checks on the diagnostic screen.

Part Name

Operation

Adjustment Item

Proceed to

Steering sensor

  • Removal and installation of the steering sensor
  • Removal and installation of the connector of the steering sensor
  • Replacement

Steering angle neutral point (Initialize panoramic view monitor system)

Adjust steering angle

Procedure 9

Radio receiver assembly

Replacement

After replacing the radio receiver assembly of vehicles subscribed to pay-type satellite radio broadcasts, radio ID registration is necessary (w/ SXM System)

Re-install the eOwner's manual

Parking assist ECU

Replacement

Parking assist ECU initialization

Procedure 2

Procedure 7

Procedure 8

Adjust steering angle

Procedure 9

Suspension, tires, etc.

The vehicle height changes because of suspension or tire replacement

Parking assist ECU initialization

Procedure 2

Procedure 7

Procedure 8

Adjust steering angle

Procedure 9

Rear television camera assembly

  • Replacement
  • Installation angle of the rear television camera changes because of the removal and installation of the rear television camera, etc.

Rear television camera view adjustment

Procedure 2

Procedure 4

Procedure 8

  • Front television camera assembly
  • Front bumper assembly
  • Radiator grille assembly
  • Replacement
  • Installation angle of the front television camera changes because of the removal and installation of the front television camera, etc.

Front television camera view adjustment

Procedure 2

Procedure 3

Procedure 8

Side television camera assembly LH

Outer rear view mirror assembly LH

  • Replacement
  • Installation angle of the side television camera changes because of the removal and installation of the side television camera, etc.

Side television camera view adjustment

Procedure 2

Procedure 5

Procedure 8

Side television camera assembly RH

Outer rear view mirror assembly RH

  • Replacement
  • Installation angle of the side television camera changes because of the removal and installation of the side television camera, etc.

Side television camera view adjustment

Procedure 2

Procedure 6

Procedure 8

  • Front television camera assembly, radiator grille assembly or front bumper assembly
  • Rear television camera assembly
  • Side television camera assembly LH or outer rear view mirror assembly LH
  • Side television camera assembly RH or outer rear view mirror assembly RH

Replacement or removal and installation of 2 or more parts

Television camera view adjustment

Procedure 2

Procedure 7

Procedure 8

NOTICE:

After the power switch is turned off, the radio receiver assembly records various types of memory and settings. As a result, after turning the power switch off, wait a minute or more before disconnecting the cable from the negative (-) auxiliary battery terminal.

Waiting Time before Disconnecting Cable from Negative (-) auxiliary battery Terminal

Condition

Waiting Time

Vehicle enrolled in Lexus Enform system or safety connect system

6 minutes

Vehicle not enrolled in Lexus Enform system and safety connect system

1 minute

HINT:

The adjustment values stored while performing panoramic view monitor system calibration are stored in the parking assist ECU.

Procedure 1: PRE-WORK CHECKS

(a) Preliminary checks

NOTICE:

  • Provide shadow to prevent backlight from hitting the camera.
  • Use string that does not stretch.
  • Apply pieces of adhesive tape to serve as check markers. When placing the markers, make them 100 mm (3.94 in.) wide.

(1) Perform the work at a wide, level location (There is approximately 2000 mm [6.56 ft.] all around the vehicle).

(2) Park the vehicle on a flat surface with the steering wheel centered.

NOTICE:

Before stopping the vehicle, move the vehicle backward and forward to ensure that both the steering wheel and the tires point straight ahead.

(3) Adjust the tire pressure to the specified value(s).

(4) Remove all luggage from the vehicle before starting work.

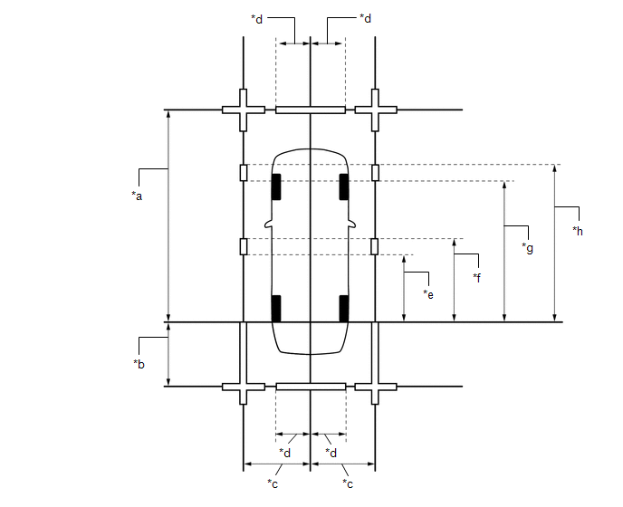
(b) Marker locations

(1) Secure the string to the locations required to make the checks and set markers as shown in the illustration.

  • Front camera adjustment only

    *a

    Cross Check Marker

    *b

    Check Marker

    *c

    String 1

    *d

    String 2

    *e

    String 3

  • Rear camera adjustment only

    *a

    Cross Check Marker

    *b

    Check Marker

    *c

    String 1

    *d

    String 2

    *e

    String 4

  • Left camera adjustment only

    *a

    Cross Check Marker

    *b

    Check Marker

    *c

    String 1

    *d

    String 2

    *e

    String 3

    *f

    String 4

    *g

    String 5

  • Right camera adjustment only

    *a

    Cross Check Marker

    *b

    Check Marker

    *c

    String 1

    *d

    String 2

    *e

    String 3

    *f

    String 4

    *g

    String 6

  • Adjustment of 4 cameras

    *a

    Cross Check Marker

    *b

    Check Marker

    *c

    String 1

    *d

    String 2

    *e

    String 3

    *f

    String 4

    *g

    String 5

    *h

    String 6

(c) Marker positions

(1) Set the check markers at the positions shown in the illustration.

*a

5000 mm (16.4 ft.)

*b

1300 mm (4.26 ft.)

*c

1500 mm (4.92 ft.)

*d

693 mm (2.27 ft.)

*e

1400 mm (4.59 ft.)

*f

1600 mm (5.25 ft.)

*g

3000 mm (9.84 ft.)

*h

3200 mm (10.50 ft.)

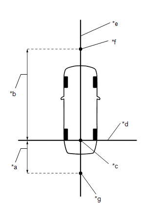
PROCEDURE 2: SET DATUM POINTS

(a) Extend the datum line (string 1).

(1) Hang a weight with a pointed tip and accurately mark the center position on the road surface. (Mark A)

NOTICE:

Make sure that the weight hangs straight down from the string.

*a

Mark A

*b

Weight

(2) Repeat the procedure to mark the right side. (Mark B)

(3) Secure string 1 so that it passes through marks A and B on the left and right sides.

*a

String 1

*b

Mark A

*c

Mark B

NOTICE:

When securing the string, check that there is no slack and the string is not twisted.

(b) Extend the vehicle center line (string 2).

(1) Hang a weight with a pointed tip such that is passes through the center of the front television camera assembly and accurately mark the center position on the road surface. (Mark C)

*1

Front Television Camera Assembly

-

-

*a

Center Point

*b

Weight

*c

String

*d

Mark C

(2) Hang a weight with a pointed tip from the center of the rear emblem and accurately mark the center position on the road surface. (Mark D)

*a

Center

*b

Weight

*c

String

*d

Mark D

*e

Equal Distance to Center

-

-

(3) Secure string 2 so that it passes through marks C and D at the front and rear of the vehicle.

NOTICE:

When securing string 2, check that there is no slack and the string is not twisted.

HINT:

Set the point where strings 1 and 2 intersect as the datum point.

*a

Datum Point

*b

String 1

*c

String 2

*d

Mark C

*e

Mark D

PROCEDURE 3: SET MARKERS (when checking front)

*a

5000 mm (16.4 ft.)

*b

Datum Point

*c

String 1

*d

String 2

*e

Mark E

(a) In front of the vehicle, extend string 3 perpendicular to the vehicle center line (string 2), and place a marker.

(1) Mark the position on string 2 in front of the vehicle, 5000 mm (16.4 ft.) from the datum point. (Mark E)

(2) Fix the ends of 2 strings (800 mm [2.62 ft.] long) at 2 positions 400 mm (1.31 ft.) from mark E as shown in the illustration.

*a

400 mm (1.31 ft.)

*b

String 2

*c

Mark E

(3) Move the free ends of the 2 strings and mark the point where the ends meet. (Marks F and G)

*a

800 mm (2.62 ft.) String

*b

String 2

*c

Mark E

*d

Mark F

*e

Mark G

-

-

(4) Secure string 3 so that it passes through marks F and G as shown in the illustration.

NOTICE:

When securing the string, check that there is no slack and the string is not twisted.

*a

1500 mm (4.92 ft.)

*b

String 1

*c

String 2

*d

String 3

*e

Mark F

*f

Mark G

*g

Mark H

*h

Mark I

(5) Mark positions on string 3, 1500 mm (4.92 ft.) to the left and right of the vehicle center line (string 2). (Marks H and I).

(6) Place and secure the cross check markers, centered on marks H and I.

*a

800 mm (2.62 ft.)

*b

100 mm (0.33 ft.)

*c

Cross Check Marker

*d

Check Marker

*e

Mark F

*f

Mark G

*g

Mark H

*h

Mark I

NOTICE:

  • Align the cross check markers perpendicular to the string.
  • Make each arm of the cross check markers 800 mm (2.62 ft.) long and 100 mm (0.33 ft.) wide.

(7) Place the check marker between marks F and G.

(8) Perform camera view adjustment (calibration) (procedure 8).

PROCEDURE 4: SET MARKERS (When checking rear)

(a) To the rear of the vehicle, extend string 4 perpendicular to the vehicle center line (string 2), and place a check marker.

(1) Mark a position on string 2 to the rear of the vehicle, 1300 mm (4.26 ft.) from the datum point. (Mark J)

*a

1300 mm (4.26 ft.)

*b

Datum Point

*c

String 1

*d

String 2

*e

Mark J

(2) Fix the ends of 2 strings (800 mm [2.62 ft.]) at 2 positions 400 mm (1.31 ft.) from mark J as shown in the illustration.

*a

400 mm (1.31 ft.)

*b

String 1

*c

String 2

*d

Mark J

(3) Move the free ends of the 2 strings and mark the point where the ends meet. (Marks K and L)

*a

800 mm String

*b

String 1

*c

String 2

*d

Mark J

*e

Mark K

*f

Mark L

(4) Secure string 4 so that it passes through marks K and L as shown in the illustration.

*a

1500 mm (4.92 ft.)

*b

String 1

*c

String 2

*d

String 4

*e

Mark K

*f

Mark L

*g

Mark M

*h

Mark N

NOTICE:

When securing the string, check that there is no slack and the string is not twisted.

(5) Mark positions on string 4, 1500 mm (4.92 ft.) to the left and right of the vehicle center line (string 2). (Marks M and N)

(6) Place and secure the cross check markers, centered on marks M and N.

*a

800 mm (2.62 ft.)

*b

100 mm (0.33 ft.)

*c

400 mm (1.31 ft.)

*d

Cross Check Marker

*e

Check Marker

*f

String 1

*g

Mark K

*h

Mark L

*i

Mark M

*j

Mark N

NOTICE:

  • Align the cross check markers perpendicular to the string.
  • Make each arm of the cross check markers 800 mm (2.62 ft.) long and 100 mm (1.31 ft.) wide.
  • Extend the rear cross check markers to string 1.

(7) Place the check marker between marks K and L.

(8) Perform camera view adjustment (calibration) (procedure 8).

PROCEDURE 5: SET MARKERS (When checking left side)

(a) To the left side of the vehicle, extend string 5 perpendicular to the vehicle center line (string 2), and place a check marker.

(1) Mark the position on string 2 in front of the vehicle, 5000 mm (16.4 ft.) from the datum point. (Mark E)

*a

1300 mm (4.26 ft.)

*b

5000 mm (16.4 ft.)

*c

Datum Point

*d

String 1

*e

String 2

*f

Mark E

*g

Mark J

(2) Mark the position on string 2 to the rear of the vehicle, 1300 mm (4.26 ft.) from the datum point. (Mark J)

(3) Fix the ends of 2 strings (800 mm [2.62 ft.] long) at 2 positions 400 mm (1.31 ft.) from mark E as shown in the illustration.

*a

400 mm (1.31 ft.)

*b

String 2

*c

Mark E

(4) Move the free ends of the 2 strings and mark the point where the ends meet. (Marks F and G)

*a

800 mm (2.62 ft.) String

*b

String 2

*c

Mark E

*d

Mark F

*e

Mark G

-

-

(5) Fix the ends of 2 strings (800 mm [2.62 ft.]) at 2 positions 400 mm (1.31 ft.) from mark J as shown in the illustration.

*a

400 mm (1.31 ft.)

*b

String 1

*c

String 2

*d

Mark J

(6) Move the free ends of the 2 strings and mark the point where the ends meet. (Marks K and L)

*a

800 mm (2.62 ft.) String

*b

String 1

*c

String 2

*d

Mark J

*e

Mark K

*f

Mark L

(7) Secure strings 3 and 4 so that they pass through marks F and G, marks K and L as shown in the illustration.

NOTICE:

When securing the string, check that there is no slack and the string is not twisted.

*a

1500 mm (4.92 ft.)

*b

String 3

*c

String 4

*d

Mark F

*e

Mark G

*f

Mark H

*g

Mark K

*h

Mark L

*i

Mark M

(8) Mark strings 3 and 4, 1500 mm (4.92 ft.) to the left of the vehicle center line (string 2). (Marks H and M)

(9) Secure string 5 so that it passes through marks H and M as shown in the illustration.

*a

1400 mm (4.59 ft.)

*b

1600 mm (5.25 ft.)

*c

3000 mm (9.84 ft.)

*d

3200 mm (10.50 ft.)

*e

String 1

*f

String 5

*g

Mark H

*h

Mark M

*i

Mark O

*j

Mark P

*k

Mark Q

*l

Mark R

NOTICE:

When securing the string, check that there is no slack and the string is not twisted.

(10) Make marks on string 5 that are 1400 mm (4.59 ft.), 1600 mm (5.25 ft.), 3000 mm (9.84 ft.), and 3200 mm (10.50 ft.) from the datum line (string 1) as shown in the illustration. (Marks O, P, Q and R)

(11) Place and secure the cross check markers, centered on marks H and M.

*a

100 mm (0.33 ft.)

*b

800 mm (2.62 ft.)

*c

400 mm (1.31 ft.)

*d

Cross Check Marker

*e

Check Marker

*f

String 1

*g

String 5

*h

Mark H

*i

Mark M

*j

Mark O

*k

Mark P

*l

Mark Q

*m

Mark R

NOTICE:

  • Align the cross check markers perpendicular to the string.
  • Make each arm of the cross check markers 800 mm (2.62 ft.) long and 100 mm (1.31 ft.) wide.
  • Extend the rear cross check markers to string 1.

(12) Place check markers between marks O and P, and marks Q and R.

(13) Perform camera view adjustment (calibration) (procedure 8).

PROCEDURE 6: SET MARKERS (When checking right side)

(a) At the right side of the vehicle, extend string 6 parallel to the vehicle and place a marker.

(1) Mark the position on string 2 in front of the vehicle, 5000 mm (16.4 ft.) from the datum point. (Mark E)

*a

1300 mm (4.26 ft.)

*b

5000 mm (16.4 ft.)

*c

Datum Point

*d

String 1

*e

String 2

*f

Mark E

*g

Mark J

(2) Mark the position on string 2 to the rear of the vehicle, 1300 mm (4.26 ft.) from the datum point. (Mark J)

(3) Fix the ends of 2 strings (800 mm [2.62 ft.] long) at 2 positions 400 mm (1.31 ft.) from mark E as shown in the illustration.

*a

400 mm (1.31 ft.)

*b

String 2

*c

Mark E

(4) Move the free ends of the 2 strings and mark the point where the ends meet. (Marks F and G)

*a

800 mm (2.62 ft.) String

*b

String 2

*c

Mark E

*d

Mark F

*e

Mark G

-

-

(5) Fix the ends of 2 strings (800 mm [2.62 ft.]) at 2 positions 400 mm (1.31 ft.) from mark J as shown in the illustration.

*a

400 mm (1.31 ft.)

*b

String 1

*c

String 2

*d

Mark J

(6) Move the free ends of the 2 strings and mark the point where the ends meet. (Marks K and L)

*a

800 mm (2.62 ft.) String

*b

String 1

*c

String 2

*d

Mark J

*e

Mark K

*f

Mark L

(7) Secure strings 3 and 4 so that they pass through marks F and G and marks K and L as shown in the illustration.

NOTICE:

When securing the string, check that there is no slack and the string is not twisted.

*a

1500 mm (4.92 ft.)

*b

String 3

*c

String 4

*d

Mark F

*e

Mark G

*f

Mark I

*g

Mark K

*h

Mark L

*i

Mark N

(8) Mark strings 3 and 4, 1500 mm (4.92 ft.) to the right of the vehicle center line (string 2). (Marks I and N)

(9) Secure string 6 so that it passes through marks I and N as shown in the illustration.

*a

1400 mm (4.59 ft.)

*b

1600 mm (5.25 ft.)

*c

3000 mm (9.84 ft.)

*d

3200 mm (10.50 ft.)

*e

String 1

*f

String 6

*g

Mark I

*h

Mark N

*i

Mark S

*j

Mark T

*k

Mark U

*l

Mark V

NOTICE:

When securing the string, check that there is no slack and the string is not twisted.

(10) Make marks on string 6 that are 1400 mm (4.59 ft.), 1600 mm (5.25 ft.), 3000 mm (9.84 ft.), and 3200 mm (10.50 ft.) from the datum line (string 1) as shown in the illustration. (Marks S, T, U and V)

(11) Place and secure the cross check markers, centered on marks I and N.

*a

100 mm (0.33 ft.)

*b

800 mm (2.62 ft.)

*c

400 mm (1.31 ft.)

*d

Cross Check Marker

*e

Check Marker

*f

String 1

*g

String 6

*h

Mark I

*i

Mark N

*j

Mark S

*k

Mark T

*l

Mark U

*m

Mark V

NOTICE:

  • Align the cross check markers perpendicular to the string.
  • Make each arm of the cross check markers 800 mm (2.62 ft.) long and 100 mm (0.33 ft.) wide.
  • Extend the rear cross check markers to string 1.

(12) Place check markers between marks S and T, and marks U and V.

(13) Perform camera view adjustment (calibration) (procedure 8).

PROCEDURE 7: SET MARKERS (When checking all cameras)

(a) Set markers in every direction from the vehicle.

*a

1300 mm (4.26 ft.)

*b

5000 mm (16.4 ft.)

*c

Datum Point

*d

String 1

*e

String 2

*f

Mark E

*g

Mark J

(1) Mark the position on string 2 in front of the vehicle, 5000 mm (16.4 ft.) from the datum point. (Mark E)

(2) Mark the position on string 2 to the rear of the vehicle, 1300 mm (4.26 ft.) from the datum point. (Mark J)

*a

400 mm (1.31 ft.)

*b

String 2

*c

Mark E

(3) Fix the ends of 2 strings (800 mm [2.62 ft.] long) at 2 positions 400 mm (1.31 ft.) from mark E as shown in the illustration.

(4) Move the free ends of the 2 strings and mark the point where the ends meet. (Marks F and G)

*a

800 mm (2.62 ft.) String

*b

String 2

*c

Mark E

*d

Mark F

*e

Mark G

-

-

*a

400 mm (1.31 ft.)

*b

String 1

*c

String 2

*d

Mark J

(5) Fix the ends of 2 strings (800 mm [2.62 ft.]) at 2 positions 400 mm (1.31 ft.) from mark J as shown in the illustration.

(6) Move the free ends of the 2 strings and mark the point where the ends meet. (Marks K and L)

*a

800 mm (2.62 ft.) String

*b

String 1

*c

String 2

*d

Mark J

*e

Mark K

*f

Mark L

(7) Secure strings 3 and 4 so that they pass through marks F, G, K and L as shown in the illustration.

*a

1500 mm (4.92 ft.)

*b

String 2

*c

String 3

*d

String 4

*e

Mark F

*f

Mark G

*g

Mark H

*h

Mark I

*i

Mark K

*j

Mark L

*k

Mark M

*l

Mark N

NOTICE:

Secure strings 3 and 4 so that they pass through marks F, G, K and L as shown in the illustration.

(8) Mark string 3, 1500 mm (4.92 ft.) to the left and right of the vehicle center line (string 2). (Marks H and I)

(9) Mark string 4, 1500 mm (4.92 ft.) to the left and right of the vehicle center line (string 2). (Marks M and N)

(10) Secure strings 5 and 6 so that they pass through marks H, M, I and N as shown in the illustration.

NOTICE:

When securing the string, check that there is no slack and the string is not twisted.

*a

String 1

*b

String 2

*c

String 3

*d

String 4

*e

String 5

*f

String 6

*g

Mark H

*h

Mark I

*i

Mark M

*j

Mark N

*a

1400 mm (4.59 ft.)

*b

1600 mm (5.25 ft.)

*c

3000 mm (9.84 ft.)

*d

3200 mm (10.50 ft.)

*e

String 1

*f

String 2

*g

String 3

*h

String 4

*i

String 5

*j

String 6

*k

Mark O

*l

Mark P

*m

Mark Q

*n

Mark R

*o

Mark S

*p

Mark T

*q

Mark U

*r

Mark V

(11) Make marks on string 5 that are 1400 mm (4.59 ft.), 1600 mm (5.25 ft.), 3000 mm (9.84 ft.), and 3200 mm (10.50 ft.) from the datum line (string 1) as shown in the illustration. (Marks O, P, Q and R)

(12) Make marks on string 6 that are 1400 mm (4.59 ft.), 1600 mm (5.25 ft.), 3000 mm (9.84 ft.), and 3200 mm (10.50 ft.) from the datum line (string 1) as shown in the illustration. (Marks S, T, U and V)

(13) Place and secure the cross check markers, centered on marks H, I, M and N.

NOTICE:

  • Align the cross check markers perpendicular to the string.
  • Make each arm of the cross check markers 800 mm (2.62 ft.) long and 100 mm (0.33 ft.) wide.
  • Extend the rear cross check markers to string 1.

*a

100 mm (0.33 ft.)

*b

800 mm (2.62 ft.)

*c

Cross Check Marker

*d

Check Marker

*e

String 1

*f

Mark F

*g

Mark G

*h

Mark H

*i

Mark I

*j

Mark K

*k

Mark L

*l

Mark M

*m

Mark N

*n

Mark O

*o

Mark P

*p

Mark Q

*q

Mark R

*r

Mark S

*s

Mark T

*t

Mark U

*u

Mark V

-

-

(14) Place check markers between marks F and G, marks K and L, marks O and P, marks Q and R, marks S and T, and marks U and V.

(15) Perform camera view adjustment (calibration) (procedure 8).

PROCEDURE 8: CAMERA VIEW ADJUSTMENT (CALIBRATION)

(a) Enter diagnostic mode.

  • w/ Audio and Visual System:

    Click here

  • w/ Navigation System:

    Click here

NOTICE:

The check must be performed with the power switch on (READY). Therefore, apply the parking brake, depress the brake pedal and move the shift lever to P to ensure that the vehicle does not begin moving unexpectedly.

(b) Select "Function Check/Setting" from the "Service Menu" screen.

(c) Select "Camera Setting" on the "Function Check/Setting I" screen to display the Mode Setting screen.

NOTICE:

If the "Camera Setting" selection screen is not displayed, turn the power switch off and enter the diagnosis screen after turning the power switch on (IG) once again.

(d) Select "View Adjustment" on the Mode Setting screen to display the adjustment screen.

HINT:

To select a grayed out item, select and hold the item for 2 seconds or more.

(e) After checking the screen, press the "NEXT" button on the "Signal Check" screen.

HINT:

  • When "CHK" (red) is displayed, perform the inspections.
  • If performing the adjustment after proceeding to the next screen, confirm that all items display "OK" (blue) before selecting "Next".

(f) Perform the view adjustment.

*a

Red Line

*b

Cross Check Marker

*c

Adjustment Button

*d

Camera Select Button

*e

Height Control Button

-

-

NOTICE:

If replacing a camera, select the repaired camera and press "New Camera".

(1) Check that the cross check markers displayed on the adjustment screen appear connected.

NOTICE:

  • Before checking the adjustment screen, ensure that the check markers have been placed correctly.
  • If a cross check marker appears displaced on the adjustment screen, use the camera select buttons to select the corresponding camera, and then use the adjustment buttons or vehicle height adjustment buttons to adjust the screen.

HINT:

If adjustment is needed, select "All View Reset" button and reset all adjustment values.

(2) Confirm the check marker is in the adjustment screen.

NOTICE:

  • Before checking the adjustment screen, ensure that the check markers have been placed correctly.
  • If a check marker appears displaced on the adjustment screen, use the camera select buttons to select the corresponding camera, and then use the adjustment buttons or vehicle height adjustment buttons to adjust the screen.

    HINT:

    If performing adjustment again, select "All View Reset" to initialize the adjustment status.

(g) When all adjustments are completed, press "OK".

(h) If data writing ends normally, "The view data writing was completed." is displayed.

(i) Press "OK".

(j) Finish diagnostic mode.

  • w/ Audio and Visual System

    Click here

  • w/ Navigation System:

    Click here

PROCEDURE 9: STEERING ANGLE SETTING

(a) Preparation for adjustment

(1) Park the vehicle with the steering wheel centered.

HINT:

Before parking the vehicle, be sure to move the vehicle forward and in reverse to check that the tires are facing straight ahead with the steering wheel centered.

(2) Adjust the tire pressure to the specified value(s).

(b) Start the diagnostic mode.

  • w/ Audio and Visual System:

    Click here

  • w/ Navigation System:

    Click here

NOTICE:

The following must be carried out with the power switch on (READY). Apply the parking brake, depress the brake pedal, check that the shift lever is in P, and ensure that the vehicle is not moving.

(c) Select "Function Check/Setting" on the "Service Menu" screen.

(d) Select "Camera Setting" on the "Function Check/Setting I" screen.

NOTICE:

If the "Camera Setting" selection screen is not displayed, turn the power switch off and enter the diagnosis screen after turning the power switch on (IG) once again.

(e) Select "Steering Angle Setting" on the Mode Setting screen to display the Signal Check screen.

HINT:

To select a grayed out item, select and hold the item for 2 seconds or more.

(f) Select "Next" on the Signal Check screen to display the Steering Angle Setting screen.

NOTICE:

  • If "CHK" (red) is displayed for an item on the Signal Check screen, selecting "Next" will not change to the Steering Angle Setting screen.
  • Check the Signal Check screen when "CHK" (red) is displayed for an item on the Signal Check screen.

(g) Adjust the steering angle

(1) Check that the steering wheel is centered (approximately +/- 5 degrees or less) and then select "Steering Center Memorize".

(2) Turn the steering wheel fully to the left and fully to the right, and then press "Max Steering Angle Memorize". (Turning right and then left is OK)

(3) When "Max Steering Angle Memorize" is selected, the system beeps, the steering angle setting values (steering neutral point and maximum steering angle) are stored, and the Mode Setting screen is displayed again.

HINT:

  • A beep will sound to confirm that the adjustment values have been stored.
  • If all signals are input normally, the Mode Setting screen is displayed automatically after the maximum steering angle is stored.
  • If steering angle setting is incomplete, "OK" cannot be selected.
  • Even if no DTC is detected, a steering sensor malfunction may disable the use of "Max Steering Angle Memorize".
  • If selecting "Max Steering Angle Memorize" does not cause the adjustment value to be stored after adjusting the steering angle, replace the steering sensor.

    Click here

(h) Finish diagnostic mode.

  • w/ Audio and Visual System:

    Click here

  • w/ Navigation System:

    Click here

(i) Confirm steering angle adjustment.

HINT:

If the steering angle has been adjusted, confirm the steering angle adjustment on the panoramic view monitor screen after finishing diagnosis mode.

(j) Check on the parking assist monitor screen that the estimated course line moves until the steering wheel is fully turned to either the left or right.

HINT:

If the estimated course line stops moving before the steering wheel is fully turned to either the left or right, the steering angle adjustment values have not been stored correctly. In this case, perform "Steering Center Memorize" and "Max Steering Angle Memorize" again.

READ NEXT:

 Problem Symptoms Table

PROBLEM SYMPTOMS TABLE NOTICE: The following inspection procedure of the panoramic view monitor system is described on the assumption that the audio and visual system*1 or navigation system*2 is no

 Terminals Of Ecu

TERMINALS OF ECU PARKING ASSIST ECU (a) Disconnect the P44 parking assist ECU connector. (b) Measure the voltage and resistance according to the value(s) in the table below. Terminal No. (Symbol)

 Diagnosis System

DIAGNOSIS SYSTEM PARKING ASSIST MONITOR DIAGNOSIS SYSTEM (a) For panoramic view monitor system diagnosis, signals received by the parking assist ECU can be checked, and the panoramic view monitor syst

SEE MORE:

 Satellite Radio Broadcast cannot be Selected or After Selecting Broadcast, Broadcast cannot be Added into Memory

CAUTION / NOTICE / HINT NOTICE: Some satellite radio broadcasts require payment. A contract must be made between a satellite radio company and the user. If the contract expires, it will not be possible to listen to the broadcast. When replacing the radio receiver assembly, always replace it wit

 System Description

SYSTEM DESCRIPTION SEAT BELT WARNING SYSTEM DESCRIPTION HINT: The front seat belt warning light on the combination meter assembly is used for both the driver side seat and front passenger side seat. (a) Front seat belt warning light operation for driver side seat belt: The seat belt warning light on

© 2016-2026 Copyright www.lexunx.com